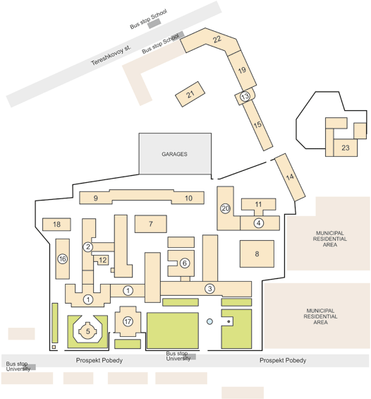
Campus Map


1. OSU buildingš#š1

2. OSU buildingš#š2

3. OSU buildingš#š3

4. OSU buildingš#š4

5. Saint Martyr Tatyana Chapel

6. OSU buildingš#š6

7. Sports and Health Gym

8. Dining Hall

9. OSU dormitoryš#š1

10. OSU dormitoryš#š3

11. OSU dormitoryš#š4

12. Additional building to the OSU buildingš#š2

13. OSU Students’ Polyclinic (OSU buildingš#š13)

14. Nine-story apartment house

15. Nine-story apartment house

16. OSU Students’ Polyclinic (OSU buildingš#š16)

17. Research library (OSU buildingš#š17)

18. Five-story apartment house

19. Ten-story apartment house

20. OSU buildingš#š20

21. Ten-story apartment house

22. Eleven-story apartment house

23. Maintenance Department

In order for us to provide you with high-quality services, we use cookies that are stored on your computer (location information; ip-address; type, language, OS and browser version; device type and screen resolution; source from which you came to site the user; what pages the user opens and what buttons the user clicks; the same information is used to process statistical data on the use of the site through the Sputnik analytical system and the Yandex.Metrika Internet service). By clicking the "I agree" button, you confirm that you are informed about the use of cookies on our website. You can disable cookies in your browser settings.

Contact Us:

Orenburg State University

named after V.A.šBondarenko

13 Prospect Pobedy

Orenburg 460018

Russia

Phone:

+7 (3532) 77-67-70

E-mail:post@mail.osu.ru

š š š

¿ Orenburg State University named after V.A. Bondarenko, 1999–2026. Design by CIT