Техническая документация

Регламент

Том А

Том Б

Техническая документация по компетенциям

Наименование компетенцииДокументация
Веб-дизайн и разработка

инфраструктурный лист

техническое описание

конкурсное задание день 1

конкурсное задание день 2

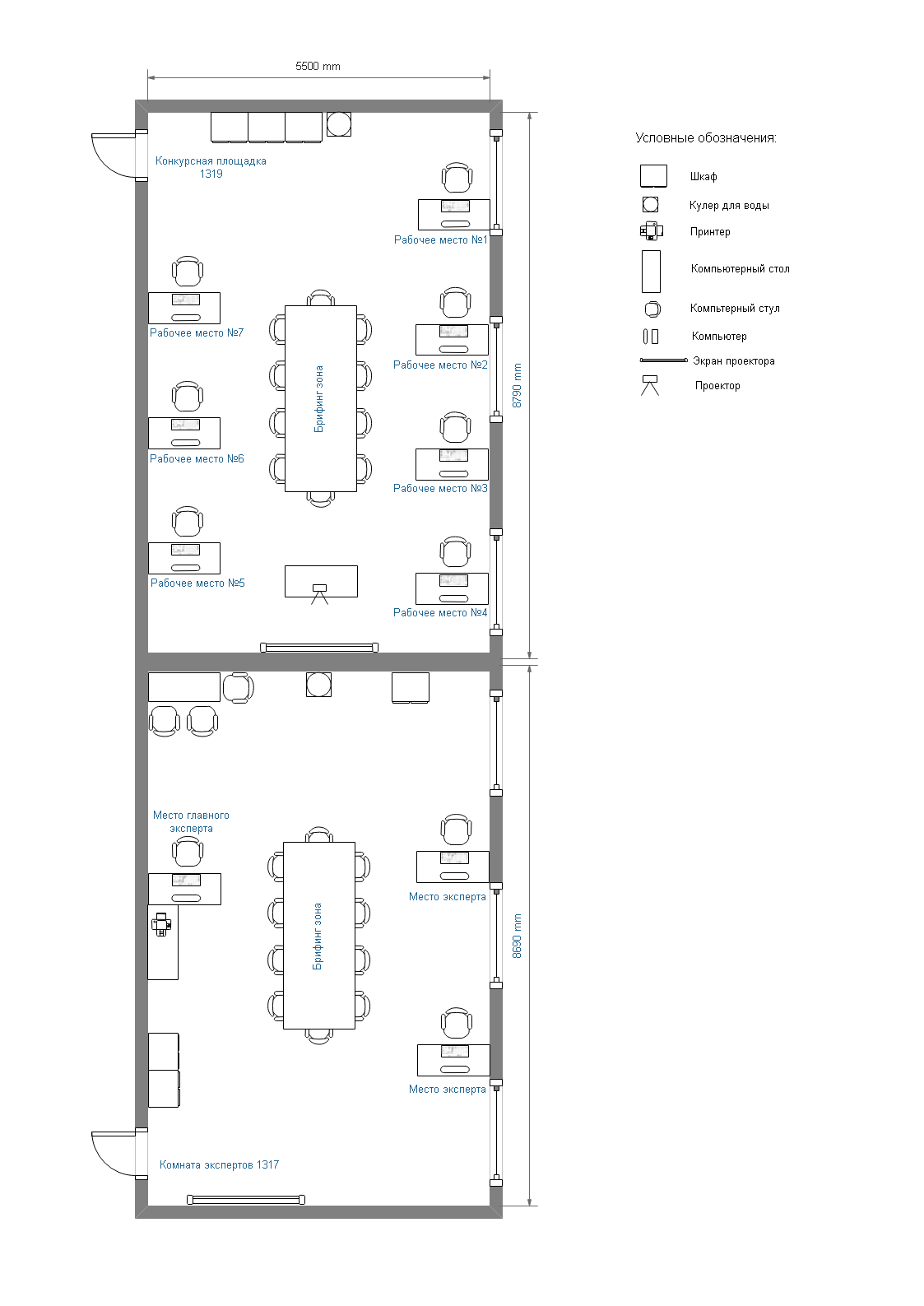
план застройки

план работы площадок

Программные решения для бизнеса

инфраструктурный лист

техническое описание

план застройки

план работы площадок

Предпринимательство

инфраструктурный лист

техническое описание

конкурсное задание

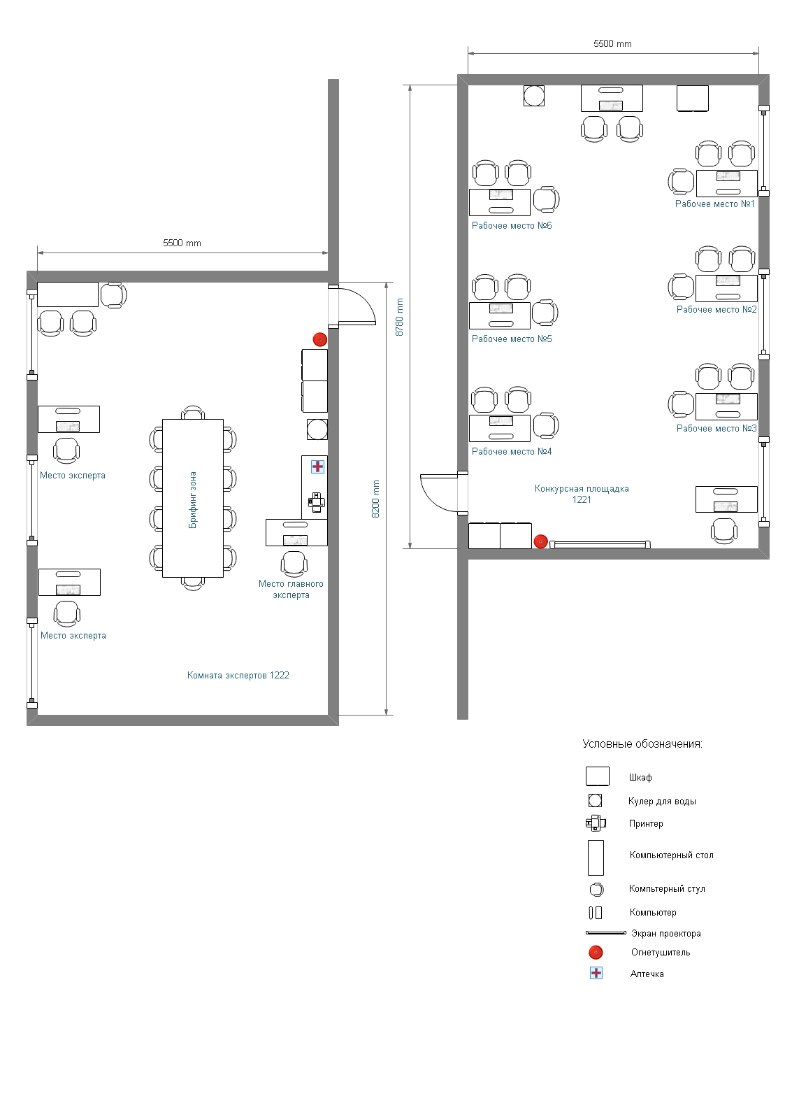
план застройки

Техник по управлению, содержанию и обслуживанию общего имущества многоквартирного дома (МКД) (презентационная)

инфраструктурный лист

конкурсное задание

план застройки