Объявления:

Студенческий семинар как способ вовлечения студентов в науку и повышения ее престижа

16.05.22
Научный семинар «Проблемы механики, компьютерный инжиниринг и цифровое проектирование». Открыть в новом окне [172 Kb]

Для объединения молодых, талантливых и амбициозных студентов, которые делают первые шаги в исследованиях, в Оренбургском государственном университете делается многое. И в этом процессе кафедра механики материалов, конструкций и машин (ММКМ) принимает самое активное участие, так как считает важным поддержать начинающих исследователей, создать условия для раскрытия способностей каждого, показать возможности для реализации личного потенциала в научной сфере.

На текущей неделе в рамках работы студенческого научного общества на кафедре ММКМ состоялся научный семинар «Проблемы механики, компьютерный инжиниринг и цифровое проектирование», на котором магистрантами первого и второго года обучения были сделаны сообщения о своих проектах и научных исследованиях.

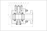
Из всех докладов участников была отмечена работа студентки группы 20Маш(ма)ПМКИ Екатерины Михайленко, обучающейся по магистерской программе «Прикладная механика и компьютерный инжиниринг». Она презентовала на семинаре проект на тему: «Расчет и проектирование специального шарового крана с автоматизированным управлением для нефтегазоперерабатывающей отрасли».

В своей работе Екатерина раскрыла процесс конструирования запорной арматуры — шарового крана, на достаточно научно-популярном уровне осветила теоретические сведения о запорной арматуре, сделала и краткий обзор научных работ по теме. Вместе с тем уделила внимание и аналогам производителей отечественной продукции, поделилась со всеми и выявленными проблемами в потребности конструирования специального изделия.

На данном научном мероприятии ею были представлены результаты разработки двух эскизных проектов конструкции, выбор материала элементов конструкции. Для определения наиболее удачного варианта Екатерина Михайленко провела расчет геометрических параметров элементов, а также напряженно-деформированного состояния корпуса, основных элементов, выполнила расчет пружин, резьбовых соединений, расчет штока на кручение. Хрупкая девушка смогла выявить и доказательно аргументировать достоинства разработанной конструкции шарового крана. Также студентка применила знания, полученные в процессе обучения, и спроектировала специальный червячный редуктор с электроприводом, необходимость в котором образовалась из-за возникновения больших усилий для осуществления поворота штока.

Данной работой заинтересовались не только участники научного семинара, но и в рамках импортозамещения некоторые Оренбургские предприятия по производству запорной арматуры. После изготовления устройства были произведены опрессовочные испытания, которые прошли успешно. Кран установили в систему трубопроводов и произвели апробацию. Сейчас устройство проходит опытно полевые испытания в реальных условиях, после этого можно говорить о точности произведенных расчетов и проверки геометрической совместимости, правильности сборки изделия.


Научный семинар «Проблемы механики, компьютерный инжиниринг и цифровое проектирование». Открыть в новом окне [106 Kb]
Научный семинар «Проблемы механики, компьютерный инжиниринг и цифровое проектирование». Открыть в новом окне [106 Kb]
Научный семинар «Проблемы механики, компьютерный инжиниринг и цифровое проектирование». Открыть в новом окне [87 Kb]
Научный семинар «Проблемы механики, компьютерный инжиниринг и цифровое проектирование». Открыть в новом окне [50 Kb]

Кафедра механики материалов, конструкций и машин

Ошибка в тексте? Выделите её и нажмите «Ctrl + Enter».

Поделиться:

Для того, чтобы мы могли качественно предоставить вам услуги, мы используем cookies, которые сохраняются на вашем компьютере (сведения о местоположении; ip-адрес; тип, язык, версия ОС и браузера; тип устройства и разрешение его экрана; источник, откуда пришел на сайт пользователь; какие страницы открывает и на какие кнопки нажимает пользователь; эта же информация используется для обработки статистических данных использования сайта посредством аналитической системы «Спутник», интернет-сервиса Яндекс.Метрика и сервиса аналитики MyTracker). Нажимая кнопку «Согласен», вы подтверждаете то, что вы проинформированы об использовании cookies на нашем сайте. Отключить cookies вы можете в настройках своего браузера.

Платежный сервис ОГУ
  • Всероссийская студенческая научная конференция
  • Служба по контракту в войсках беспилотных систем
  • Проект «Оценка и развитие управленческих компетенций в российских образовательных организациях»
  • Всероссийская акция «Неделя без турникетов»
  • Президентская программа подготовки управленческих кадров
  • Год единства народов России. План мероприятий
  • Дни открытых дверей в ОГУ
  • Каждый выходной в ОГУ — Университетские субботы для школьников
  • Школа юного биохимика и микробиолога для старшеклассников
  • «Зеленая школа»
0/0
80 лет Победы в Великой Отечественной войне

Сегодня

5 апреля 2026 г., воскресенье
8 неделя (верхняя)
Неделя рубежного контроля

температура воздухаатмосферное давление

Скоро

Приглашаем принять участие

Объявления

  • 01.04.2026 Проект «Оценка и развитие управленческих компетенций в российских образовательных организациях» для студентов выпускных курсов ОГУ

    АНО «Россия — страна возможностей» приглашает принять участие в проекте «Оценка и развитие управленческих компетенций в российских образовательных организациях» и пройти диагностику универсальных компетенций обучающихся выпускных курсов бакалавриата, специалитета и магистратуры, в рамках которого студенты смогут: ›››

  • 01.04.2026 Набор в ВУЦ по программе подготовки офицеров кадра

    Военный учебный центр имени дважды Героя Советского Союза генерал-полковника Родимцева А.И. при ОГУ осуществляет прием граждан для целевого обучения по программе подготовки офицеров кадра Вооруженных сил Российской Федерации. ›››

  • 01.04.2026 Выборы на должность директора ИМЭП

    ОГУ объявляет выборы на должность директора Института менеджмента, экономики и предпринимательства. ›››

  • 27.03.2026 Выборы на должности заведующих кафедрами

    ОГУ объявляет выборы на должности заведующих кафедрами: ›››

  • 27.03.2026 Выборы на должность директора Института непрерывного профессионального образования ОГУ

    ОГУ объявляет выборы на должность директора Института непрерывного профессионального образования ОГУ. ›››

  • 25.03.2026 Конкурс на должности ППС

    ОГУ объявляет конкурс на должности профессорско-преподавательского состава по кафедрам: ›››

  • 25.03.2026 Проект от «РФЯЦ-ВНИИЭФ» для студентов ОГУ

    ФГУП «Российский федеральный ядерный центр Всероссийский научно-исследовательский институт экспериментальной физики» приглашает студентов ОГУ для прохождения практики и трудоустройства. ›››

  • 25.03.2026 Программа повышения квалификации «Совершенствование педагогического мастерства преподавателей среднего профессионального и высшего образования»

    С 30 марта 2026 г. в Институте развития образования ОГУ реализуется программа повышения квалификации «Совершенствование педагогического мастерства преподавателей среднего профессионального и высшего образования». Справки по тел. (35-32) 91-22-59.

  • 24.03.2026 Программы переподготовки и повышения квалификации бухгалтеров и аудиторов

    Учебно-методический центр по подготовке профессиональных бухгалтеров и аудиторов ОГУ объявляет запись на программы дополнительного профессионального образования 2025/26 учебного года. ›››

  • 12.03.2026 Набор офицеров и сержантов запаса

    Военный учебный центр имени Героя Советского Союза генерал-полковника Родимцева А.И. при ОГУ (далее ВУЦ при ОГУ) со 2 марта 2026 года объявил очередной набор на военно-учетные специальности. ›››

  • 11.03.2026 Конкурс на должности ППС

    ОГУ объявляет конкурс на должности профессорско-преподавательского состава по кафедрам: ›››

  • 03.03.2026 Проект по набору выпускников в образовательные организации Оренбургской области

    В Оренбургской области в целях решения задач кадрового обеспечения образовательных организаций, реализующих программы начального общего, основного общего, среднего общего образования, министерство образования Оренбургской области информирует выпускников ОГУ, что с 12 января 2026 года в рамках реализации программы «Земский учитель» организован прием документов для участия в конкурсном отборе. ›››

  • 12.02.2026 Открыта регистрация на главное молодежное событие Приволжья

    ОГУ приглашает студентов и активистов принять участие в масштабном молодежном форуме «iВолга» с 24 по 31 июля 2026 года. ›››

  • 11.02.2026 Конкурсный отбор специалистов на обучение по Президентской программе

    Федеральный ресурсный центр информирует о начале проведения конкурсного отбора специалистов на обучение по Президентской программе подготовки управленческих кадров в 2026/27 учебном году с 4 февраля 2026 года. ›››

  • 10.02.2026 Стартовала регистрация на главный молодежный фестиваль мира

    Международный фестиваль молодежи для активных и целеустремленных молодых людей планеты пройдет в Екатеринбурге с 11 по 17 сентября. Право стать частью этого масштабного диалога получит уникальное сообщество: десять тысяч граждан России и зарубежных стран в возрасте до 35 лет. ›››

  • 11.12.2025 Подготовительные курсы к вступительным испытаниям в 2026 году

    Центр довузовской подготовки «Абитуриент» ОГУ приглашает на двухнедельные подготовительные курсы к сдаче вступительных испытаний, проводимых университетом самостоятельно в форме тестирования в 2026 году. ›››

Почтовый адрес:

460018, г. Оренбург,

просп. Победы, д. 13

Телефон:

+7 (35-32) 77-67-70

Горячая линия Минобрнауки России:

- по обеспечению правовой и социальной защиты обучающихся: 8 800 222-55-71 (доб. 1)

- по психологической помощи студенческой молодежи: 8 800 222-55-71 (доб. 2)

         

Официальный сайт федерального государственного бюджетного образовательного учреждения высшего образования «Оренбургский государственный университет имени В.А. Бондаренко».

Соглашение об использовании сайтаПолитика обработки персональных данных веб-сайтов ОГУ

© ОГУ, 1999–2026. При использовании материалов сайта гиперссылка обязательна!